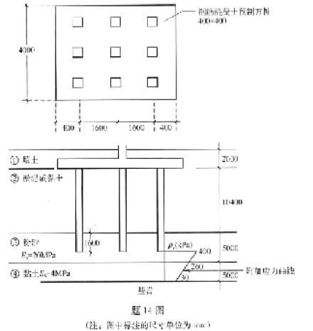
某桩基工程安全等级为二级、其桩型平面布置、剖面及地层分布如图所示,土层及桩基设计参数见图中注,作用于桩端平面处的有效附加应力为400kPa(长期效应组合)...

作者: rantiku 人气: - 评论: 0
问题 某桩基工程安全等级为二级、其桩型平面布置、剖面及地层分布如图所示,土层及桩基设计参数见图中注,作用于桩端平面处的有效附加应力为400kPa(长期效应组合),其中心点的附加压力曲线如图所示(假定为直线分布)。沉降经验系数φ=1,地基沉降计算深度至基岩面,按《建筑桩基技术规范》(JGJ94一94)验算桩基最终沉降量,其计算结果最接近()。 A.3.6cm B.5.4cm C.7.9cm D.8.6cm
选项
答案 B
解析

猜你喜欢

发表评论
更多 网友评论0 条评论)
暂无评论
错误啦!

错误信息

  • 消息: [程序异常] : MISCONF Redis is configured to save RDB snapshots, but it's currently unable to persist to disk. Commands that may modify the data set are disabled, because this instance is configured to report errors during writes if RDB snapshotting fails (stop-writes-on-bgsave-error option). Please check the Redis logs for details about the RDB error.
  • 文件: /twcms/kongphp/cache/cache_redis.class.php
  • 位置: 第 85 行
    <?php echo 'KongPHP, Road to Jane.'; ?>